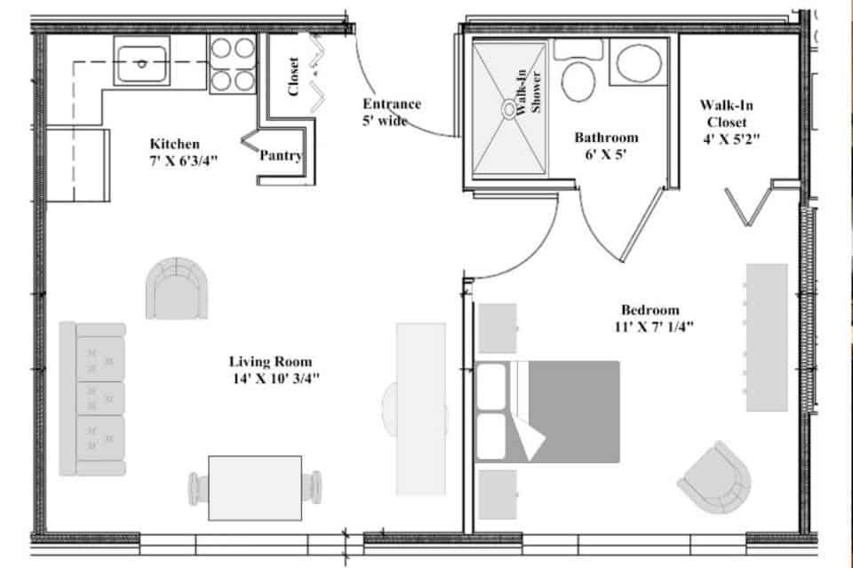
Assisted Living Apartments
Assisted Living at Snyder Village has 65 private apartments with floor plans that include studio, one-bedroom and two-bedroom layouts. Apartments are designed for residents who wish to keep their independence, yet also want some level of assistance. Pricing for the apartments varies based on apartment size and level of care. With staff present around-the-clock, we provide a variety of support services. Our trained caregivers are kind, gentle, and compassionate and pride themselves on providing exceptional care for our residents.
For more information, contact:


